Contatta il Venditore
Global Immobiliare Srl
Membro da: 13 novembre 2017
La Global Immobiliare ha sede ad Alassio (SV) in Viale Gibb 4, ci occupiamo prevalentemente di compravendita immobiliare ma anche di affitti sia mensili che stagionali .
Invia MessaggioDettagli Venditore:
-
Telefono3351766469
-
Tipo annuncioIn Vendita
Descrizione annuncio:
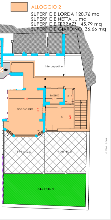
Proponiamo nella primissima collina di Alassio, appartamenti in Villa di nuova e recente ristrutturazione, con spettacolare vista mare, terrazze vivibili, giardino e posto auto di proprietà.
L’appartamento ha una superficie interna di 120,76 mq, disposto su due livelli, 45,79 mq di terrazzi e 36,66 mq di giardino.
Internamente l’alloggio è composto da ingresso su ampia zona giorno, cucina, tre camere da letto, doppi servizi e ripostiglio .
Distanza dal mare 200 mt, raggiungile anche a piedi con strada pedonale.
